Дом M86

Цена

Панели домокомплекта 

Домокомплект с доставкой и монтажем:

 5,9 млн 

от 7,5 млн

Отапливаемая площадь

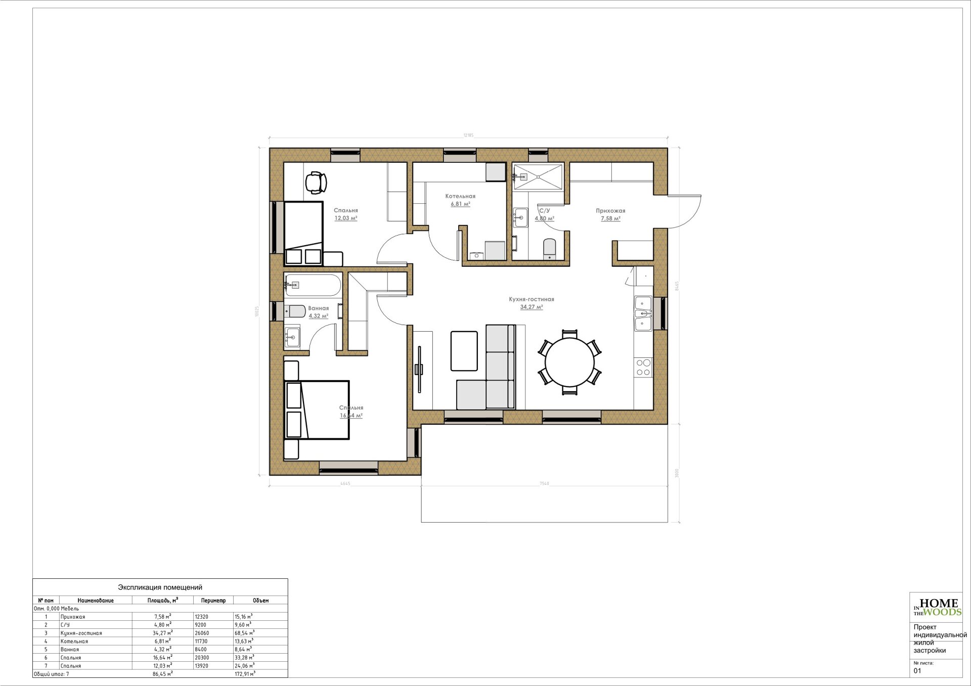
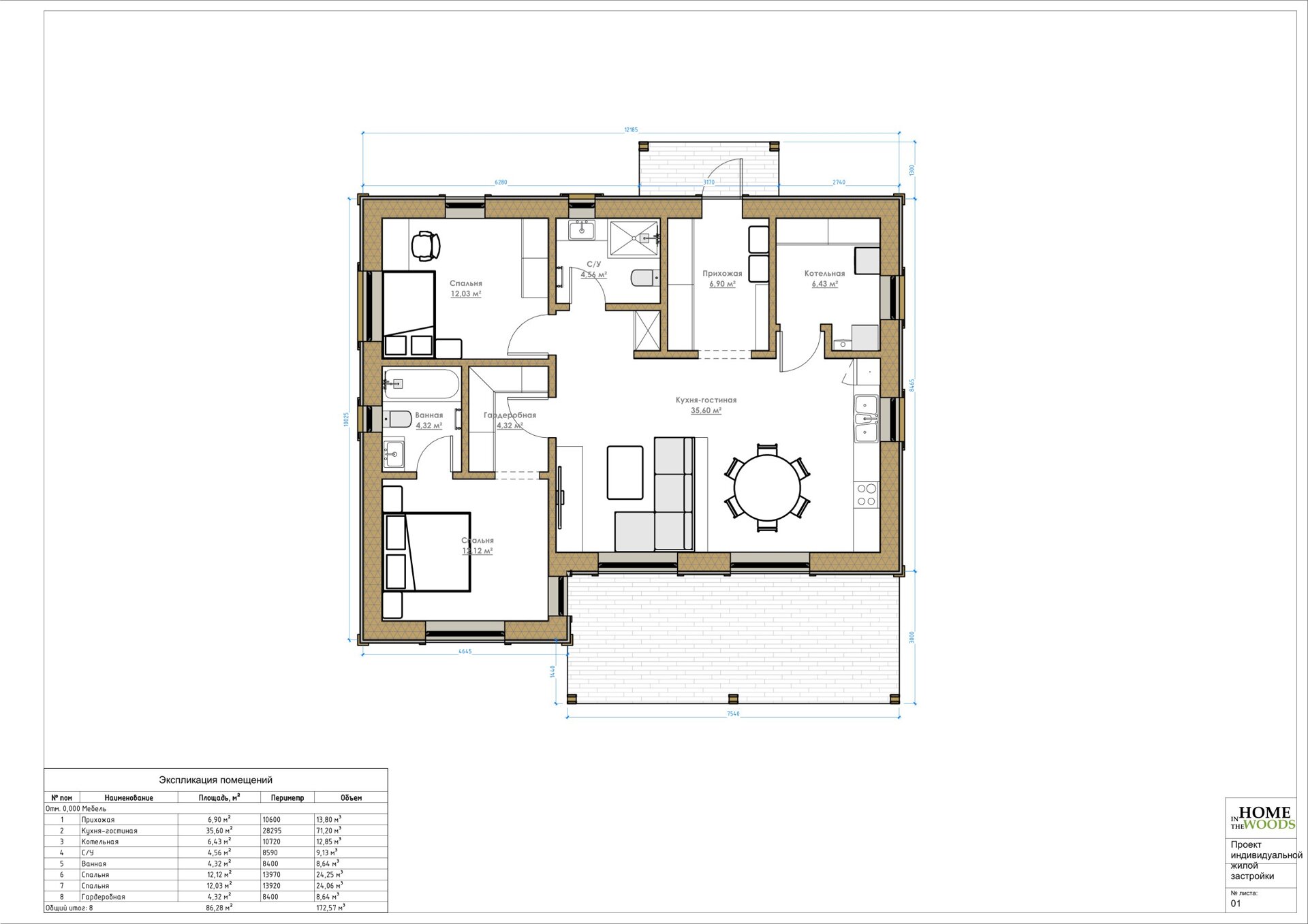
86 м2

Спальни

2

Санузлы

2

Планировка

Архитектор проекта
Петров Сергей

Хотите создать собственную планировку?


Это совсем просто! Назначьте встречу с нашим архитектором и на основе ваших идей он создаст индивидуальный проект.

Проект энергоэффективного дома M86: идеальное пространство для здоровья

Планируете построить лучший дом для жизни, где современный комфорт встречается с экологичностью? Проект M86 с отапливаемой площадью 86 м² — это воплощение идеи о светлом, уютном и безопасном жилье, идеально подходящем для семьи из 2–3 человек. Если вы рассматриваете соломенный дом как основу для будущего семейного гнезда, данный проект станет безупречным выбором.

Планировка, продуманная до мелочей

Центральное место в доме занимает просторная гостиная, объединенная с зоной столовой. Это солнечное пространство создано для теплых встреч и отдыха. Использование натуральных материалов, таких как современные соломенные панели, позволяет поддерживать внутри идеальный микроклимат: зимой в таком доме тепло, а летом — свежо.

В доме предусмотрены:

  • Две просторные спальни: в каждой из них запроектированы полноценные системы хранения, что позволяет рационально использовать каждый метр.
  • Два удобных санузла: наличие ванной комнаты и дополнительного санузла обеспечивает уровень комфорта, соответствующий самым высоким стандартам.
  • Функциональная кухня: зона приготовления пищи оборудована всем необходимым для размещения встроенной техники, превращая кулинарный процесс в удовольствие.

Здоровье и эстетика в каждом метре

Выбирая дом из соломы, вы выбираете жизнь без аллергенов и токсичных материалов. Это настоящий дом для здоровья, где стены «дышат», а отличная звукоизоляция обеспечивает тишину и покой.

Большие окна позволяют максимально эффективно использовать естественный дневной свет, наполняя комнаты жизнью. Фасад дома, выполненный в спокойных природных тонах, гармонично вписывается в ландшафт, подчеркивая статус владельца, ценящего экологичный стиль жизни.

Почему проект M86 — это ваш выбор?

Комбинация продуманной эргономики, энергоэффективных технологий и уютного внутреннего дизайна делает этот дом лидером в своем сегменте. Это не просто здание, а инвестиция в ваше самочувствие и комфорт.

Закажите строительство по проекту M86 и начните новую главу в доме, который заботится о вас!

Все ещё думаете, какой дом заказать?

Позвольте нам рассказать обо всех преимуществах соломенного дома 

и у вас не останется сомнений в правильном выборе дома!

© 2014-2025 Green Cube.

Все права защищены

ИНН: 1658202336 

ОГРН: 1171690092200

Профессиональное строительство экодомов с утеплителем из соломы. Теплые дома в современной России, которые позволяют экономить средства на обслуживании и обогреве.

Контактная информация:


Время работы: 

пн-пт с 9-00 до 18-00 


Телефон: 

+7 (950) 317-17-71 


Почта :

spgreencube@gmail.com