Дом M137

Цена

Панели домокомплекта 

Домокомплект с доставкой и монтажем:

 10,4 млн 

от 13,1 млн

Отапливаемая площадь

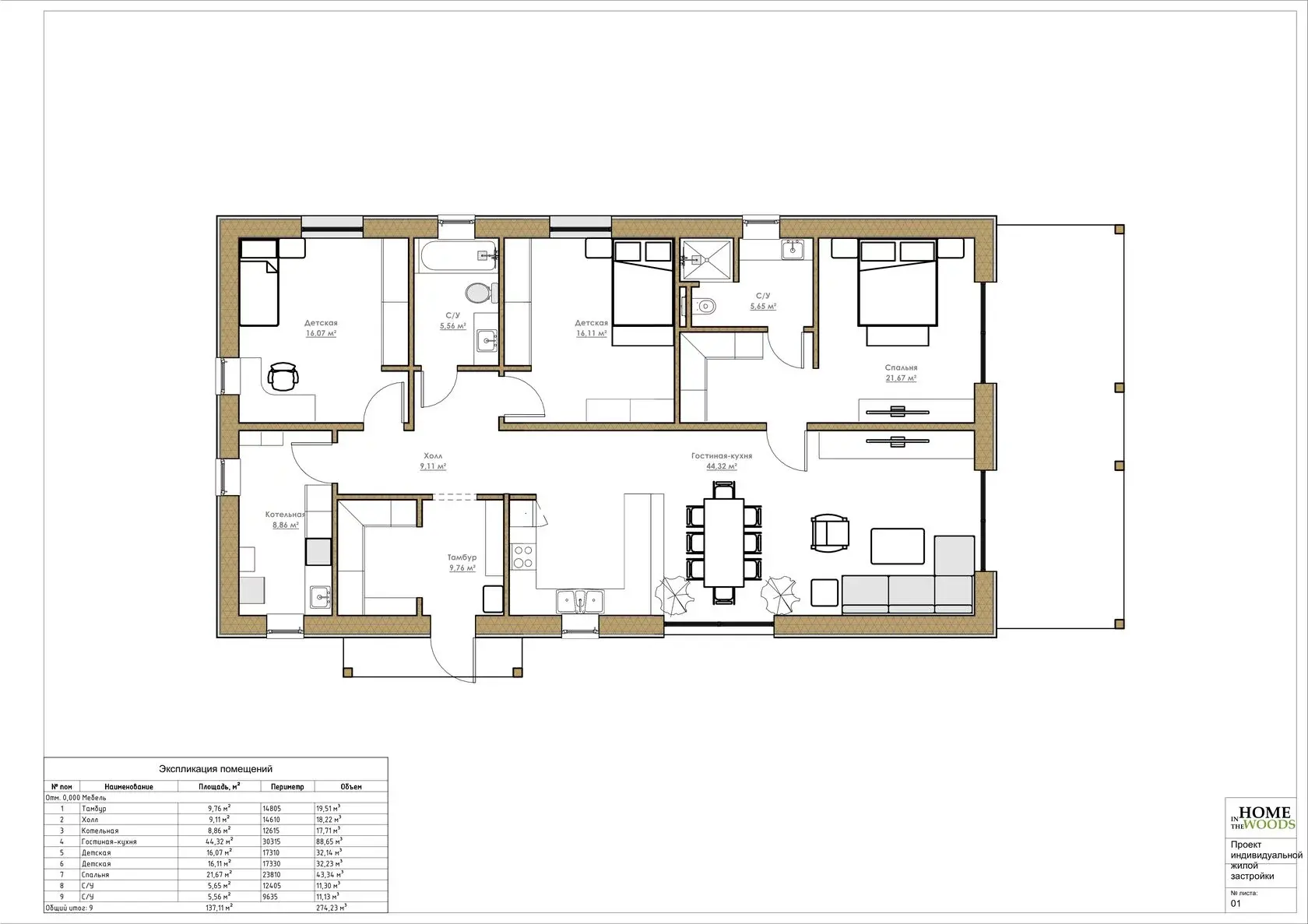
137.1 м2

Спальни

3

Санузлы

2

Планировка

Архитектор проекта
Петров Сергей

Хотите создать собственную планировку?


Это совсем просто! Назначьте встречу с нашим архитектором и на основе ваших идей он создаст индивидуальный проект.

Дом M137

Дом с отапливаемой площадью 137 квадратных метров - это просторное и функциональное жилье, идеально подходящее для семьи из 4-6 человек. В доме расположены три спальни, два санузла и удобная гостиная, а также большая веранда, которая создаст прекрасные условия для отдыха всей семьи.

Гостиная имеет просторную зону для отдыха и общения, дополненную просторной обеденной зоной и открытой кухней. Кухня оборудована всей необходимой кухонной техникой и имеет достаточно места для приготовления пищи. Высокие потолки и большое окно создадут ощущение простора и уюта.

Три спальни расположены отдельно друг от друга для большей приватности. Два санузла оборудованы современными удобствами и просторными душевыми, что делает их очень функциональными и удобными в использовании.

Веранда, расположенная в фасадной части дома, отлично подходит для отдыха на свежем воздухе и занятий спортом. Ее пространство достаточно велико, чтобы разместить мебель для отдыха или стол для еды, что позволит сделать отдых более комфортным.

В целом, это прекрасный дом, идеально подходящий для семьи, который ценит комфорт, функциональность и красоту внутреннего пространства. Он обладает всеми удобствами и дополнительными удобствами, браслетами для комфортного и расслабленного образа жизни.

Все ещё думаете, какой дом заказать?

Позвольте нам рассказать обо всех преимуществах соломенного дома 

и у вас не останется сомнений в правильном выборе дома!

© 2014-2025 Green Cube.

Все права защищены

ИНН: 1658202336 

ОГРН: 1171690092200

Профессиональное строительство экодомов с утеплителем из соломы. Теплые дома в современной России, которые позволяют экономить средства на обслуживании и обогреве.

Контактная информация:


Время работы: 

пн-пт с 9-00 до 18-00 


Телефон: 

+7 (950) 317-17-71 


Почта :

spgreencube@gmail.com